REQUEST A TOUR If you would like to see this home without being there in person, select the "Virtual Tour" option and your agent will contact you to discuss available opportunities.
In-PersonVirtual Tour

$ 1,575,000
Est. payment /mo
Active
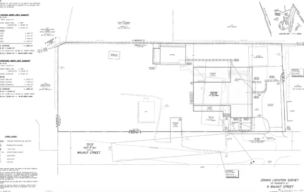
9 Walnut Street Greenwich, CT 06807
0.52 Acres Lot
UPDATED:
Key Details
Property Type Vacant Land
Sub Type Residential Land
Listing Status Active
Purchase Type For Sale
MLS Listing ID 24138306
Annual Tax Amount $8,825
Lot Size 0.520 Acres
Property Sub-Type Residential Land
Property Description
.52 Acre Buildable Lot with Existing Cottage - North Mianus Nestled at the end of a private road in the desirable North Mianus neighborhood, this .52-acre property offers a unique combination of privacy, potential, and flexibility. The lot is fully entitled with plans to build a 4,200 sq. ft. custom home, making it ideal for builders, investors, or end-users looking to create their dream residence. In addition to the new-construction opportunity, the property includes an existing 1-bedroom, 1-bathroom cottage that is grandfathered in-perfect for rental income, a guest house, or an in-law suite while the main home is being built. This is a rare offering in one of Greenwich's most sought-after areas, within the North Mianus Elementary and Eastern Middle School districts,
Location
State CT
County Fairfield
Zoning R-12
Exterior
Utilities Available Cable, Electric, Gas, Phone Available
Waterfront Description Access
Building
Lot Description Rocky, Level Lot, On Cul-De-Sac
Sewer Public Sewer Connected
Water Public Water Connected
Schools
Elementary Schools North Mianus
Middle Schools Eastern
High Schools Greenwich
Listed by Peter Janis • Berkshire Hathaway NE Prop.






